Navigation aufklappen/zuklappen
Willkommen
Aktuelles
Ferienwohnung
Beschreibung
Service des Hauses
Preise
Verfügbarkeit buchen!
Friesenhausen & Umgebung
Gastronomie
Freizeitangebot
Kontakt
Anfahrt
Links
Impressum Datenschutz
Gästebuch
Willkommen
Aktuelles
Ferienwohnung
Beschreibung
Service des Hauses
Preise
Verfügbarkeit buchen!
Friesenhausen & Umgebung
Kontakt
Gästebuch
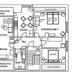
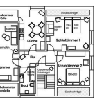
Ein Blick in unsere 5-Sterne-Ferienwohnung
↑
Anrufen
E-Mail
Anfahrt